Making (Air)Waves: The New Pillsbury Creative Commons

Pillsbury House + Theatre in South Minneapolis expands its campus with a community hub housing studios for a hyper-local radio station, apartments for visiting artists, and flexible gathering spaces

By Chris Hudson | December 18, 2025

Gensler design principal Bill Baxley, FAIA, describes the Pillsbury Creative Commons’s street presence as “subtle and bold at the same time.” Photo by Jasper Lazor.

PROJECT GALLERY

Nonprofit community organizations are often challenged to do more with less. When opportunities arise to grow or enhance their facilities, the goal is typically to create spaces whose impact far exceeds their physical footprint.

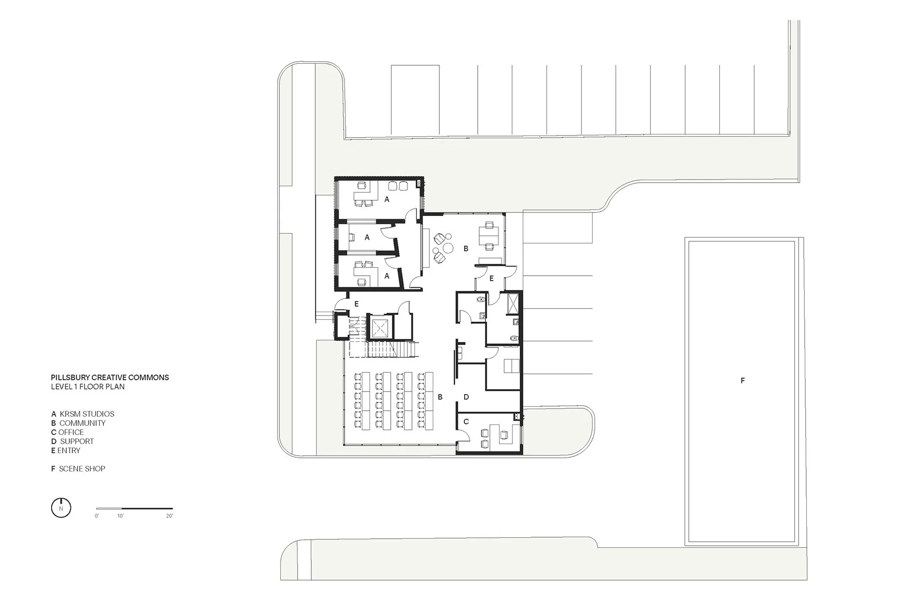
Pillsbury House + Theatre—a South Minneapolis organization that pairs arts programming with essential community services—has accomplished just that with its new Creative Commons. Designed by the Minneapolis office of Gensler, the 4,500-square-foot, two-story building brings together three studios for KRSM 98.9 FM, living units for two artists-in-residence, and a glass-walled, main-level gathering space that supports a wide range of community uses. Together, these programs form a campus hub for local storytelling, creative exchange, and workforce training in radio broadcasting.

Photos 1–3: The main gathering space hosts workshops, after-school programs, and live performances, among other activities. 4–5: Radio production spaces for KRSM 98.9 FM, a hyper-local station amplifying underrepresented voices across Minneapolis. 6: Second-floor common area and deck for artists-in-residence. 7–8: The green roof above the radio studios improves acoustics and reduces stormwater runoff. 9: The colorful north exterior. 10: The street elevation is a beacon for the Pillsbury House + Theatre campus, especially at night. Photos 1, 3, 4, and 6–10 by Round Three Photography. Photos 2 and 5 by Jasper Lazor. Images 11–13: First and second floor plans and site plan. Drawings by Gensler.

Scaled to fit comfortably within its neighborhood, the building also acts as a beacon for the campus. Bold color accents and extensive transparency announce its presence, while soundproof windows into the radio studios and glass curtain wall wrapping the community space offer passersby a glimpse of the activity inside. According to Gensler design principal Bill Baxley, FAIA, Pillsbury emphasizes “radical accessibility” in every aspect of its work.

“We worked hand in hand with the Pillsbury team to understand what mattered most to them,” says Baxley. “They shaped the building as much as we did.”

“The parti [fundamental organizing idea] is simple: two masses with free-flowing space in between,” he continues. “Structural elements are left exposed inside, both as a cost-saving strategy and for their visual character. We leaned into the rigor and rhythm of those elements and created moments for Pillsbury’s colorways to come through.”

That economical approach freed resources for advanced acoustic treatments in the radio production spaces and for a green roof that reduces stormwater runoff. Looking ahead, two large murals will be installed on the building’s exterior, and Gensler’s conversion of an adjacent auto repair garage into a 2,730-square-foot scene shop will further support workforce development and training.

“Opportunities like this—to help expand the impact of vibrant organizations such as Pillsbury House + Theatre—are why we practice,” says Baxley. “This project was truly a labor of love for everyone involved.” 

The Pillsbury Creative Commons project team included Gensler, Element, Flannery Construction, Élan Design Lab, KRA, Paulson & Clark Engineering, J. Becher & Associates, Modern Heating & Air, and Budget Plumbing.


Related Articles

 
Previous
Previous

Alliiance Honored with AIA Minnesota’s Biennial Firm Award

Next
Next

The 10 Recipients of 2025 AIA Minnesota Honor Awards