Corner-Lot Contemporary

By Chris Hudson | January 15, 2026

A contemporary new home and ADU in South Minneapolis by HMM Architects. Photo by Spacecrafting/Michael Green.

PROJECT GALLERY

How do you design a modern multigenerational home that fits comfortably into a city neighborhood filled with Craftsman, Tudor, and Foursquare houses? HMM Architects and their clients answered that question by blending several ideas and influences into a cohesive, thoughtfully integrated design.

Located in South Minneapolis, the one-story home takes full advantage of its reverse corner lot through an L-shaped main residence and an accessory dwelling unit (ADU) perched above a garage tucked into the back corner of the property. Each wing of the house features a shed roof and clerestory windows for ample daylighting. The larger, south-facing roof supports an expansive solar array.

Photos 1–5: A walk around the property. The exterior’s clear-stain cedar elements and shou sugi ban (charred wood) siding and fencing were sourced from the Great Lakes Wood Co. in Duluth. 6: A bird’s-eye view shows the arrangement of the main house, the ADU (for a grandparent’s extended stays), and the shared outdoor living space in between. All photos by Spacecrafting/Michael Green.

Between the main house and the ADU, a tiered outdoor living area forms a shared courtyard inspired by the Japanese engawa—a narrow walkway that lines a home’s perimeter—as well as the intimate courtyards of midcentury Eichler houses.

While the home’s geometry is more pronounced than that of its neighbors, carefully chosen exterior materials and colors soften its modern character. HMM Architects founder and principal Mathias Mortenson, AIA, and designer David Markie, Assoc. AIA, clad the exterior in gray nickel gap siding, shou sugi ban (fire-blackened) pine, and clear-stain cedar.

Inside, the lofty main living space opens to a front patio on one side and the central courtyard on the other through multi-slide doors. The kitchen and living/dining area share a wing with the primary suite, while the smaller wing houses bedrooms for the family’s two teenagers. A lower level includes a recreation room, exercise room, bathroom, and utility space, though the home was intentionally designed to support one-level living as the owners age.

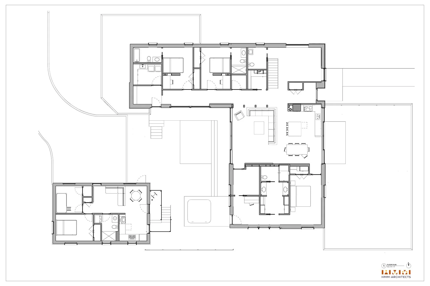
Images 1–3: The main family living area. 4: A soaring office space off the main entry. 5: The hall for the second and third bedrooms and laundry room, looking back toward the entry. 6 and 7: The smaller bedrooms receive natural light from clerestory windows. 8: Floor plans for the main house and ADU. All photos by Spacecrafting/Michael Green. Plan by HMM Architects.

“They’re very happy in the home,” says Mortenson. “We worked closely with them to figure out what would work best for their family, and the result—the layout, the indoor-outdoor connections, and all the natural light—truly does.”

The home also delivers exceptional energy performance. Rooftop solar panels, triple-pane windows, and exterior walls constructed with R-25 insulated concrete forms (ICFs) bring the property close to net-zero carbon performance.

The project team for this home included HMM Architects, RE-Dwell, A.M. Structural Engineering, Emu Passive, and Mom’s Design Build.


Related Articles

 
Previous
Previous

Minneapolis American Indian Center

Next
Next

Aging in Place. But Which Place?